Aktuelles Wohnungsangebot
Hier werden Wohnträume wahr.
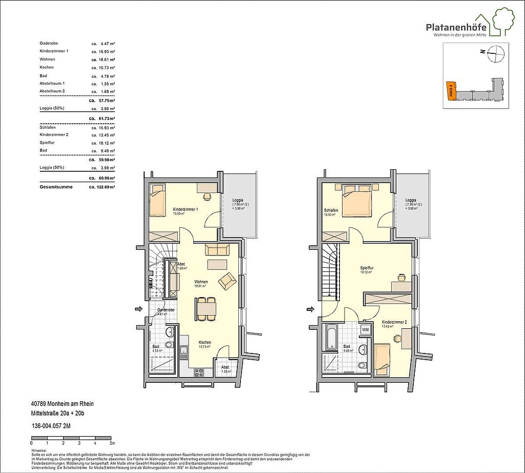
4,5 Zimmer Maisonette Wohnung im Neubau aus 2022
Mittelstraße 20a, 40789 Monheim
Eckdaten
| Etage | 2 |
| Wohnfläche | ca. 122.69 m2 |
| Bezugsfrei ab | 01.01.2026 |
| Zimmer | 4.5 |
| Schlafzimmer | 3 |
| Badezimmer | 2 |
| Baujahr | 2022 |
| Balkon | ja |
| Keller | ja |
Kosten
| Kaltmiete | 1.594,97 EUR |
| Nebenkosten | 250,00 EUR |
| Gesamtmiete | 2.024,97 EUR |
| Kaution | 4.784,00 EUR |
| Heizkosten | 180,00 EUR |
Objektbeschreibung
***Platanenhöfe - Wohnen in der Grünen Mitte! *** Neubauprojekt an der Vereinsstr. 10 - 14 und Mittelstr. 20a + b: Das barrierefreie, komplett verklinkerte U-förmige Mehrfamilienhaus besteht aus vier Eingängen, 61 Wohnungen, einer Kindergroßtagespflege (Kinder U3) und einer Tiefgarage mit 37 Stellplätzen. Ein Gebäudeteil staffelt sich zum Innenbereich bis auf das 2. OG ab, da hier ein Dachgarten vorgesehen wird. Jede Etage ist barrierefrei und bequem über einen Fahrstuhl zu erreichen. Das Besondere der Platanenhöfe: * Paketstationen Durch private Paketstationen vor dem Haus, verpassen unsere Kunden nie wieder eine Sendung. *Mobilitätskonzept Im Quartier entstehen Parkplätze mit Ladestationen für E-Autos/E-Bikes sowie Mieter-CarSharing-Modelle mit E-Autos und E-Lastenräder. *Dachgarten für die Gemeinschaft: Ein Dachgarten ist ein idealer Platz zum Treffen, Austauschen, Klönen und für gemeinsame Kleinveranstaltungen. Der Dachgarten erhält eine aufwendige Begrünung, Lichtkonzept sowie mobile Sitzmöglichkeiten und einen eigenen Zugang. *Ökostrom Als eines der ersten Wohnungs-unternehmen in Deutschland hat die WSG die gesamte Energie-versorgung auf Ökostrom und klimaneutrales Erdgas umgestellt. *Flexiräume Ideal zur temporären Nutzung im Falle eines räumlichen „Engpasses“: Platz für Hobbies, Home-Office etc.
Ausstattung
Die 4,5- Zimmer Wohnung verfügt über folgende Innenausstattung: * Zwei gemütliche Loggien mit barrierefreiem Austritt und Wandbeleuchtung * Wand- und Deckenflächen mit Malervlies tapeziert, weiß gestrichen, matte Optik (Raumhöhe 2,60 m lichtes Maß) * Oberböden in den Wohnräumen: edles Designvinyl Eichenholzdekor und weißen Fußleisten * Fenster sind nur am Freitritt bodentief, an den anderen Fenstern ist eine 50cm Brüstung vorhanden (Fensterbank Kunststein aus Marmormehl) * Oberböden in Flur und den Bädern: großformatige Fliesen in basaltgrau * Fußbodenheizung in der gesamten Wohnung (Raumweise regulierbar, im Bad zusätzlich mit Handtuchwärmekörper) * zwei Bäder mit bodentiefer Dusche zzgl. einer Badewanne, weiße großformatige Wandfliesen im Format 30x60, * Vorwandinstallation basaltgrau gefliest * Waschmaschinen- und Trockneranschluss im Badezimmer vorhanden * dreifach verglaste Kunststofffenster mit elektrischen Rollläden * Zimmertüren weiß, mit Drückergarnituren aus Edelstahl *schallisolierte Wohnungstür mit Einbruchschutz * Videogegensprechanlage * SAT TV-Anschluss in Wohn- und Schlafraum vorhanden * Telefon- und Internetanschluss über Glasfaser * Sicherungskasten und Medienverteilerkasten in der Wohnung sowie Messeinrichtungen für gerechte Verbrauchsabrechnung (Warm-, Kaltwasser, Heizung) * Dunstabzug nur über Umluft möglich * Rauchwarnmelder mit 10 Jahresbatterie * eigener Mieterkeller im Kellergeschoss * die Wohnung wird unmöbliert vermietet --- Die Einbauküche kann nach Absprache mit den Vormietern übernommen werden. *Die Versorgung mit Wärme erfolgt durch eine umweltfreundliche Zentralheizung und einer dezentralen, kostengünstigen Art der Warmwasseraufbereitung (Luftwärmepumpe mit Gasspitzenlastkessel zur Wärmeerzeugung und Warmwasserversorgung über Hybrid-Station, Wärmeschutz gemäß EnEV 2016) * hochwertiges Schließsystem für Haustür, Allgemeinräume und Mülltonnenboxen sowie Wohnungen, Mieterkeller und Briefkästen
Lage
Die äußerst zentrale und dennoch ruhige Lage der Mittel- und Vereinsstraße ermöglicht das Einkaufszentrum Monheimer Tore sowie weitere Geschäfte des täglichen Bedarfs in nur wenigen Minuten fußläufig oder mit dem Fahrrad zu erreichen. Die Stadt Monheim bietet optimale Voraussetzungen, um alltägliche Wege mit dem Rad oder einem E-Mobil zurückzulegen. Das hervorragend ausgebaute Fahrradnetz führt 30 km über Düsseldorf bis in die Neusser Innenstadt. Ein Fahrradverleih befindet sich (in nur 1,5 Kilometern Entfernung) am Landschaftspark Rheinbogen. Zudem hat die fahrradfreundliche Stadt Monheim, zahlreiche Fahrradboxen sowie E-Bike Ladestationen am nur 300 Meter entfernten Busbahnhof eingerichtet. Im Objekt werden 144 unterirdische sowie zahlreiche oberirdische Fahrradstellplätze geschaffen. Zusätzlich zu den Wallboxen in unserer Tiefgarage finden Sie in nur 350 Metern, an der Krischer Straße, die nächste Lademöglichkeit für Ihr umweltfreundliches Elektroauto. Bis zu 2 Stunden kann ein E-Auto dort kostenfrei geladen werden. Umliegende Städte, wie z.B. Düsseldorf oder Köln sind über die nahegelegene A59 in ca. 25 Minuten erreichbar. Die Blue Office Lounge an der Mittelstraße macht es Ihnen möglich, ein eigenes Büro nach Ihrem Bedarf anzumieten oder in der Coworking Lounge zu arbeiten. Ein Arbeitsweg ohne Verkehr!
Sonstiges
Sofern Sie an der Wohnung interessiert sind, freuen wir uns über Ihre Anfrage. Bitte geben Sie unbedingt Ihre Rufnummer mit an, damit wir Sie zwecks Terminabstimmung kontaktieren können. Wir freuen uns auf Sie! i.A. Veronika Braasch WSG Dienstleister GmbH https://www.wsg-wohnen.de/startseite/ Haftungsausschluss: Es wird keine Gewähr für die Vollständig- und Richtigkeit der im Exposé gemachten Angaben übernommen. Die in den Grundrissen dargestellten Ausstattungen und Möblierungen sind beispielhaft und nicht Bestandteil des Mietgegenstandes. Haftungsansprüche, welche sich auf Schäden materieller oder ideeller Art beziehen, die dem Nutzer durch die hier dargestellten Informationen entstehen, sind grundsätzlich ausgeschlossen, sofern keine Vorsätzlichkeit oder grob fahrlässiges Verhalten vorliegt. Alle Angebote sind freibleibend und unverbindlich. Zwischenvermietung bleibt vorbehalten.
Kosten
| Kaltmiete | 1.594,97 EUR |
| Nebenkosten | 250,00 EUR |
| Gesamtmiete | 2.024,97 EUR |
| Kaution | 4.784,00 EUR |
| Heizkosten | 180,00 EUR |